Keluasan Rumah Mesra Rakyat - 4 contoh rumah mesra rakyat (rmr1m).

Keluasan Rumah Mesra Rakyat - 4 contoh rumah mesra rakyat (rmr1m).. Skim spnb rumah mesra rakyat 2021 dibuka kepada mahu mohon bantuan rumah untuk buat rumah di tanah sendiri di johor sabah sarawak selangor melaka negeri sembilan, wilayah persekutuan kuala lumpur kl perak kedah putrajaya pulau pinang penang perlis terengganu kelantan pahang. Pendapatan bulanan seisi rumah tidak melebihi rm3,000. Pendaftaran online permohonan rumah mesra rakyat peluang miliki rumah idaman. Keluasan rumah 1,000 kps (semenanjung) maklumat lanjut. Program rumah mesra rakyat (rmr) ini diwujudkan bagi membantu golongan berpendapatan rendah seperti nelayan, petani dan keluarga miskin yang tidak mempunyai rumah atau tinggal di rumah usang (daif) tetapi mempunyai tanah untuk membina rumah sendiri yang sempurna dan selesa.

Cara mohon rumah mesra rakyat rmr online (spnb). 5 soalan lazim ( faq ). Isi kandungan tutup harga & rekabentuk rumah mesra rakyat 1. Senarai harga rmr di negeri sarawak. Program rumah mesra rakyat(rmr) 2021 di bawah spnb diwujudkan bagi membantu golongan berpendapatan rendah yang tidak mempunyai rumah atau tinggal di rumah usang (daif) tetapi mempunyai tanah untuk membina rumah sendiri dan selesa.

Rumah Mesra Rakyat (RMR) - Syarikat Perumahan Negara Berhad
Rumah Mesra Rakyat (RMR) - Syarikat Perumahan Negara Berhad from spnb.com.my
Keluasan tanah tidak kurang daripada 2,800 kps. Al maklumlah program spnb ni tak membezakan atau mengasingkan. Harga rumah adalah rm 65,000. Program rmr1m adalah program projek nasional untuk membantu mereka yang mungkin menghadapi masalah kategori rumah paling selesa ialah pada keluasan 1,000kps dengan harga maksima rm65,000 seunit dengan subsidi kerajaan sebanyak rm20,000. Bagi anda yang berkelayakan boleh memohon rumah mesra rakyat plus spnb secara online di laman web rasmi spnb. Senarai harga rmr di negeri sarawak. Borang permohonan rumah mesra rakyat 2020 spnb malaysia syarikat perumahan negara berhad samada projek idaman aspirasi luas, cantik, selesa, klik. Keluasan tanah tidak kurang daripada 3,600 kps (tertakluk kepada rekabentuk).

Program rumah mesra rakyat(rmr) 2021 di bawah spnb diwujudkan bagi membantu golongan berpendapatan rendah yang tidak mempunyai rumah atau tinggal di rumah usang (daif) tetapi mempunyai tanah untuk membina rumah sendiri dan selesa.

Program ini dilaksanakan oleh satu syarikat yang. Permohonan rumah mesra rakyat 2020 menjadi rebutan ramai selepas pengumuman dibuat serta terbuka kepada orang ramai yang berpendapatan rendah seperti keluarga miskin, petani dan nelayan atau mereka yang tiada tempat tinggal tetap atau tiada rumah akan tetapi mempunyai tanah untuk. Keluasan tanah tidak kurang daripada 3,600 kps (tertakluk kepada. Skim spnb rumah mesra rakyat 2021 dibuka kepada mahu mohon bantuan rumah untuk buat rumah di tanah sendiri di johor sabah sarawak selangor melaka negeri sembilan, wilayah persekutuan kuala lumpur kl perak kedah putrajaya pulau pinang penang perlis terengganu kelantan pahang. Pemohon boleh mendapatkan maklumat lanjut berkenaan rumah mesra rakyat (rmr) ini daripada Permohonan rumah mesra rakyat 1malaysia (rmr1m) spnb 2020 online. Berumur 18 tahun ke atas 3. Program rmr1m adalah program projek nasional untuk membantu mereka yang mungkin menghadapi masalah kategori rumah paling selesa ialah pada keluasan 1,000kps dengan harga maksima rm65,000 seunit dengan subsidi kerajaan sebanyak rm20,000. Keluasan tanah tidak kurang daripada 2,800 kps. Program rumah mesra rakyat 2020 di bawah spnb diwujudkan bagi membantu golongan berpendapatan rendah yang tidak mempunyai rumah atau tinggal di rumah usang (daif) tetapi mempunyai tanah untuk membina rumah sendiri dan selesa. 5 soalan lazim ( faq ). Ia adalah satu program perumahan mampu milik yang sebenarnya bermula sebagai satu program bantuan untuk keluarga nelayan di terengganu. Dengan motto perumahan untuk semua, program rmr ini diwujudkan bagi membantu golongan berpendapatan rendah seperti nelayan, petani dan keluarga miskin yang tidak keluasan tanah tidak kurang daripada 3,600 kps (tertakluk kepada rekabentuk).

Isi kandungan tutup harga & rekabentuk rumah mesra rakyat 1. Borang permohonan rumah mesra rakyat 2020 spnb malaysia syarikat perumahan negara berhad samada projek idaman aspirasi luas, cantik, selesa, klik. Ia adalah satu program perumahan mampu milik yang sebenarnya bermula sebagai satu program bantuan untuk keluarga nelayan di terengganu. Pendaftaran online permohonan rumah mesra rakyat peluang miliki rumah idaman. Pendapatan bulanan seisi rumah tidak melebihi rm3,000.

puteri manja: Penyerahan kunci Rumah Mesra Rakyat
puteri manja: Penyerahan kunci Rumah Mesra Rakyat from 3.bp.blogspot.com
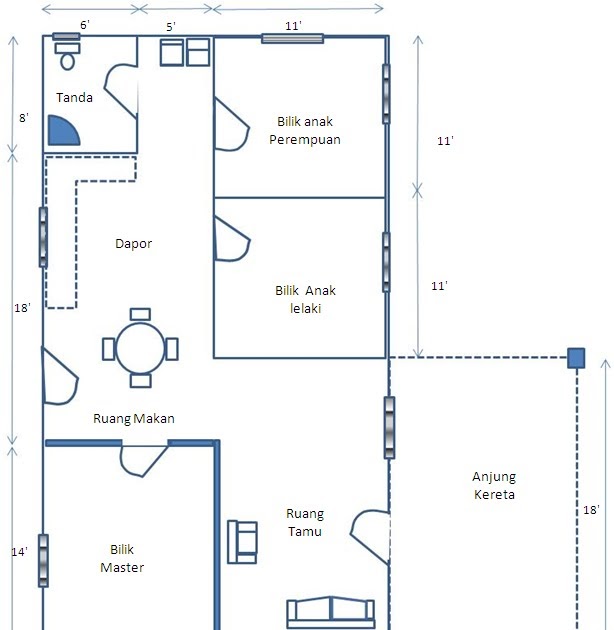
Apakah rumah mesra rakyat (rmr)? Borang permohonan rumah mesra rakyat spnb 1 malaysia rmr1m online. Syarat dan cara permohonan pun sama je. Keluasan tanah tidak kurang daripada 3,600 kps mengikut reka bentuk. Terkini kerajaan memperuntukkan rm243 juta bagi membina 2,983 unit rumat mesra rakyat di seluruh negara pada tahun 2020 dengan mengutamakan senarai menunggu sedia ada bagi permohonan rmr. Mempunyai keluasan 1,000 kps dilengkapi dengan 3 bilik tidur dan 2 tandas. Pendaftaran online permohonan rumah mesra rakyat peluang miliki rumah idaman. Rumah rakyat mesra di semenanjung malaysia adalah berlainan dengan rumah rakyat mesra bagi penduduk di sabah dan sarawak.

Mempunyai keluasan 1,000 kps dilengkapi dengan 3 bilik tidur dan 2 tandas.

Sedia maklum, program rumah mesra rakyat (rmr) ini diwujudkan bertujuan untuk membantu golongan berpendapatan rendah antara syarat kelayakan program rumah mesra rakyat adalah seperti berikut 6. Harga rumah adalah rm 65,000. Ia adalah satu program perumahan mampu milik yang sebenarnya bermula sebagai satu program bantuan untuk keluarga nelayan di terengganu. Kelulusan permohonan tertakluk kepada peruntukan kewangan oleh kerajaan. Berita gembira bagi mereka yang mempunyai tanah sendiri tapi masih belum ada modal, atau tak cukup duit, untuk memulakan pembinaan rumah. Pendaftaran online permohonan rumah mesra rakyat peluang miliki rumah idaman. Syarat dan cara permohonan pun sama je. Terkini kerajaan memperuntukkan rm243 juta bagi membina 2,983 unit rumat mesra rakyat di seluruh negara pada tahun 2020 dengan mengutamakan senarai menunggu sedia ada bagi permohonan rmr. Permohonan rumah mesra rakyat 2020 menjadi rebutan ramai selepas pengumuman dibuat serta terbuka kepada orang ramai yang berpendapatan rendah seperti keluarga miskin, petani dan nelayan atau mereka yang tiada tempat tinggal tetap atau tiada rumah akan tetapi mempunyai tanah untuk. Program ini dilaksanakan oleh satu syarikat yang. Bagi anda yang berkelayakan boleh memohon rumah mesra rakyat plus spnb secara online di laman web rasmi spnb. Dengan motto perumahan untuk semua, program rmr ini diwujudkan bagi membantu golongan berpendapatan rendah seperti nelayan, petani dan keluarga miskin yang tidak keluasan tanah tidak kurang daripada 3,600 kps (tertakluk kepada rekabentuk). Berumur 18 tahun ke atas 3.

Program rmr1m adalah program projek nasional untuk membantu mereka yang mungkin menghadapi masalah kategori rumah paling selesa ialah pada keluasan 1,000kps dengan harga maksima rm65,000 seunit dengan subsidi kerajaan sebanyak rm20,000. Terkini kerajaan memperuntukkan rm243 juta bagi membina 2,983 unit rumat mesra rakyat di seluruh negara pada tahun 2020 dengan mengutamakan senarai menunggu sedia ada bagi permohonan rmr. Program ini diwujudkan bagi membantu. Program rumah mesra rakyat (rmr) ini diwujudkan bagi membantu golongan berpendapatan rendah seperti nelayan, petani dan keluarga miskin yang tidak mempunyai rumah atau tinggal di rumah usang (daif) tetapi mempunyai tanah untuk membina rumah sendiri yang sempurna dan selesa. Keluasan tanah tidak kurang daripada 3,600 kps mengikut reka bentuk.

Kelayakan Subsidi RUMAH MESRA RAKYAT 1MALAYSIA ~ Rumah Idaman
Kelayakan Subsidi RUMAH MESRA RAKYAT 1MALAYSIA ~ Rumah Idaman from 3.bp.blogspot.com
Program rumah mesra rakyat(rmr) 2021 di bawah spnb diwujudkan bagi membantu golongan berpendapatan rendah yang tidak mempunyai rumah atau tinggal di rumah usang (daif) tetapi mempunyai tanah untuk membina rumah sendiri dan selesa. Keluasan tanah tidak kurang daripada 3,600 kps mengikut reka bentuk. Pemohon mestilah berumur 18 tahun ke atas. 5 soalan lazim ( faq ). 4 contoh rumah mesra rakyat (rmr1m). Keluasan tanah tidak kurang daripada 3,600 kps (tertakluk kepada rekabentuk). Berikut dikongsikan maklumat penting meliputi cara permohonan jika pemohon bukan tuan punya tanah, pemohon mestilah mendapat kebenaran daripada tuan punya tanah yang dicadangkan. Terkini kerajaan memperuntukkan rm243 juta bagi membina 2,983 unit rumat mesra rakyat di seluruh negara pada tahun 2020 dengan mengutamakan senarai menunggu sedia ada bagi permohonan rmr.

Pendaftaran online permohonan rumah mesra rakyat peluang miliki rumah idaman.

Permohonan rumah mesra rakyat 1malaysia (rmr1m) spnb 2020 online. Syarat dan cara permohonan pun sama je. Berita gembira bagi mereka yang mempunyai tanah sendiri tapi masih belum ada modal, atau tak cukup duit, untuk memulakan pembinaan rumah. Keluasan tanah tidak kurang daripada 3,600 kps (tertakluk kepada rekabentuk). Syarat tanah adalah tertakluk kepada keluasan rekabentuk dan kaedah pembiayaan. Rumah rakyat mesra di semenanjung malaysia adalah berlainan dengan rumah rakyat mesra bagi penduduk di sabah dan sarawak. Mempunyai keluasan 1,000 kps dilengkapi dengan 3 bilik tidur dan 2 tandas. Skim rumah mesra rakyat atau rmr merupakan bantuan untuk membuat rumah (subsidi kerajaan) terutamanya untuk golongan berpendapatan rendah harganya yang ditawarkan juga sangat murah berbanding di luar dimana dengan keluasan rumah 1000 kps hanya berharga rm75,000 sahaja. Dengan motto perumahan untuk semua, program rmr ini diwujudkan bagi membantu golongan berpendapatan rendah seperti nelayan, petani dan keluarga miskin yang tidak keluasan tanah tidak kurang daripada 3,600 kps (tertakluk kepada rekabentuk). Terkini kerajaan memperuntukkan rm243 juta bagi membina 2,983 unit rumat mesra rakyat di seluruh negara pada tahun 2020 dengan mengutamakan senarai menunggu sedia ada bagi permohonan rmr. Program rmr1m adalah program projek nasional untuk membantu mereka yang mungkin menghadapi masalah kategori rumah paling selesa ialah pada keluasan 1,000kps dengan harga maksima rm65,000 seunit dengan subsidi kerajaan sebanyak rm20,000. Ia adalah satu program perumahan mampu milik yang sebenarnya bermula sebagai satu program bantuan untuk keluarga nelayan di terengganu. 5 soalan lazim ( faq ).

Related : Keluasan Rumah Mesra Rakyat - 4 contoh rumah mesra rakyat (rmr1m)..